Bürogebäude Rennes
Bürogebäude Rennes









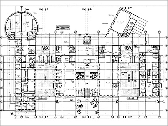
Raum: Die Gebäudegruppe gliedert sich in 4 parallel nebeneinander liegende Gebäuderiegel, verbunden mit einem vorgestelltem Glaskörper, der als Verteiler-, Verkehrs- und Kommunikationsebene dient. Diese sogenannte „Innere Straße“ bietet gemeinsame Funktionsbereiche für alle dort ansässigen Unternehmen. Die einzelnen Gebäudekörper funktionieren autonom. Der Gebäudekomplex legt sich in das leicht geneigte Gelände, so dass unter dem Erdgeschoss ein halb offener Parkplatz entsteht. Die Außenräume zwischen den Gebäuderiegeln werden als landschaftsgestaltete Terrassen oder parkähnliche Ruheräume für Beschäftigte und Besucher*innen öffentlich zugänglich sein.
Material: Die hauptsächlich verwendeten Materialien für Konstruktion und Innenausbau sind Beton, Glas und Holz. Die Büro- und Fortbildungsbereiche sind funktionell in den jeweiligen Gebäuderiegeln je nach Unternehmen ähnlich eingerichtet.
Energie: Das Projekt wurde nach den Maßgaben und dem Zertifikat HQE – Haute Qualité Environnementale - geplant und ausgeführt: natürliche Belüftung durch Atrien aus Glas, Nutzung der Sonnenenergie für Brauchwasser, konstruktiver Sonnenschutz, Wärmedämmung und Grasdächer mit extensiver Begrünung, Einbettung der Gebäudekörper in die vorhandene Umgebung unter Berücksichtigung der gegebenen Landschaftsstruktur, Revitalisierung der versiegelten Flächen und Gestaltung der Außenräume mit Aufenthaltsqualität.
- Ausführungsphase: 2007/2008
- Grundstück ca. 35.000m²
- Gebäudegrundfläche ca. 4.500m²
- Nettogeschossfläche ca. 11.500m²
- Gewerblicher Investor, Rennes - Frankreich
- Bürogebäude nach den Richtlinien der HQE (Haute Qualité Environnementale)
- Freie Mitarbeit bei Espace Architecture Paris








