Haus mit vielen Etagen
Haus mit vielen Etagen








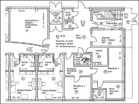
Raum: Wunsch der Auftraggeber war ein gemeinschaftlich zu nutzendes Wohngebäude für mehrere, zum Teil schwerst behinderte junge Menschen, die bislang überwiegend zu Hause betreut wurden. Der Verein hatte ein leerstehendes Fabrikgebäude ausfindig gemacht und angefragt, wie und zu welchen Kosten es für diese Zwecke umzubauen sei. Das Ziel, eine möglichst kostengünstige Lösung zu entwickeln, konnte aufgrund der gegebenen Tatsachen nicht den gleichzeitig gestellten hohen Anforderungen gerecht werden. Neben statischen Unwägbarkeiten aufgrund eines Brandschadens im Gebäude waren vor allem die Fassadenplatten aus stahlbewehrten Waschbeton-Sandwichplatten ein hoher Risiko- und Kostenfaktor. Die Ausarbeitung wurde unter erheblichem Zeitdruck vorangetrieben und innerhalb von drei Wochen mit der Kostenschätzung abgeschlossen.
Realisierung: Aufgrund der zu erwartenden Kosten und der schließlich als zu unsicher eingestuften Förderpolitik wurde das Projekt leider nicht weiter vom Kreditinstitut unterstützt und musste auf unbestimmte Zeit verschoben werden.







