"Soziale Stadt"- Am Kiffkampe Hannover Ricklingen
"Soziale Stadt"- Am Kiffkampe Hannover Ricklingen





Das Gebiet “Soziale Stadt Oberricklingen Nord-Ost” wurde im Juni 2017 vom Land Niedersachsen in das Städtebauförderungsprogramm “Soziale Stadt” aufgenommen. Ein Ziel dieses Programms ist, die Modernisierung und energetische Sanierung im Geschosswohnungsbau sowie den Einsatz erneuerbarer Energien im Energiequartier (Integriertes Energie- und Klimaschutzkonzept) voranzubringen. Ziele waren u. a. …
- Attraktivitätssteigerung des Quartiers für heutige und zukünftige Bewohner*innen,
- Vermeidung von Verdrängungseffekten,
- Sicherung und Stärkung des Wohnstandortes,
- Sicherung der städtebaulichen Struktur und Gestalt der Zeilenbebauung im Geschosswohnungsbau,
- Verbesserung des Stadtteilimages.
Die Erfüllung der Klimaschutzziele des Bundes und der Kommune sowie die Verringerung des zukünftigen Wärmebedarfs stehen hier im Vordergrund. Da teilweise ein hoher energetischer Modernisierungsbedarf existiert, sind für eine nachhaltige Sicherung und Stärkung umfassende Bestandsmodernisierungen einschließlich bauphysikalischer Verbesserungen und energetischer Sanierungen notwendig. Zeitgemäße Anpassungen des Wohnungsbestandes bei gleichzeitigem Erhalt von preisgünstigem Wohnraum sind erforderlich. Ebenfalls liegt ein Schwerpunkt auf der Entwicklung neuer bzw. zusätzlicher Wohnraumangebote.
Unser Realisierungskonzept:
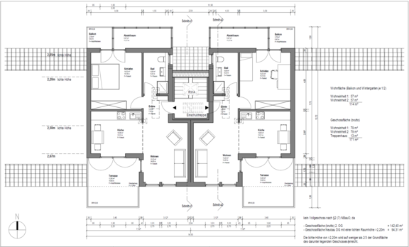
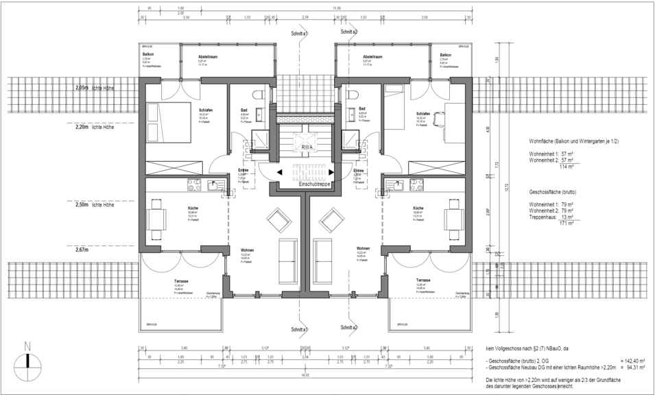
- Ausbau und Erweiterung der Dachgeschossebene,
- Erneuerung der Dacheindeckung mit Wärmedämmung, ggf. Verlängerung der Überstände,
- Ausbau und Optimierung der Grundrisse der Dachgeschosse mit Balkonfenstern bzw. zusätzlichen Gauben,
- Zentralisierung der Heizung von derzeit sieben dezentralen Thermen zu einem zentralen System,
- Zentralisierung der WWB unter Nutzung von Frischwasserstationen in den Wohnungen, Sanierung der Stränge und ggf. Badezimmer,
- Einbau einer Wärmepumpe mit Erdsonde, Solarthermie zur Warmwasserbereitung bzw. Heizungsunterstützung.




