Navigation überspringen
+49 (511) 89 767 890
e3architekten
e3
erfolgreich
Jobs
Team
ergebnisse
energie
Energieberatung
Nachhaltiges Gestalten
Erneuerbare Energien / Solares Bauen
echtzeit
erreichbar
+49 (511) 89 767 890
Architektur, Raum und Energie
ergebnisse
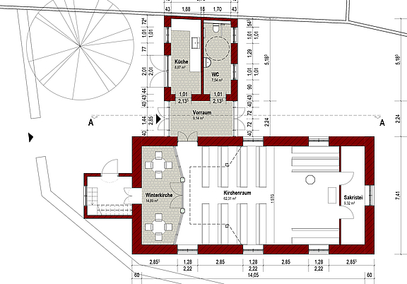
St. Michael Kirche - 12-Apostel-Gemeinde
St. Michael Kirche - 12-Apostel-Gemeinde
St. Michael Kirche - 12-Apostel-Gemeinde