Waldorfkindergarten Berlin Köpenick
Waldorfkindergarten Berlin Köpenick







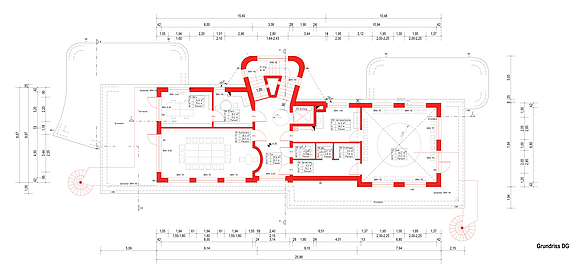
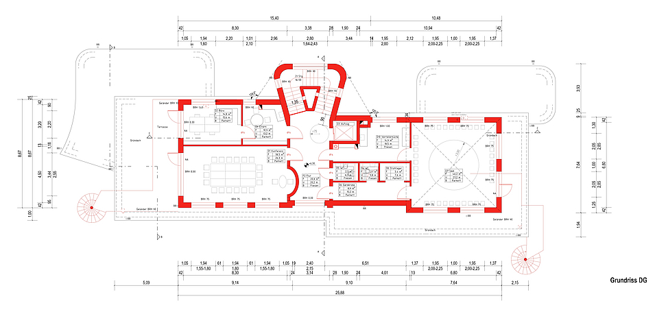
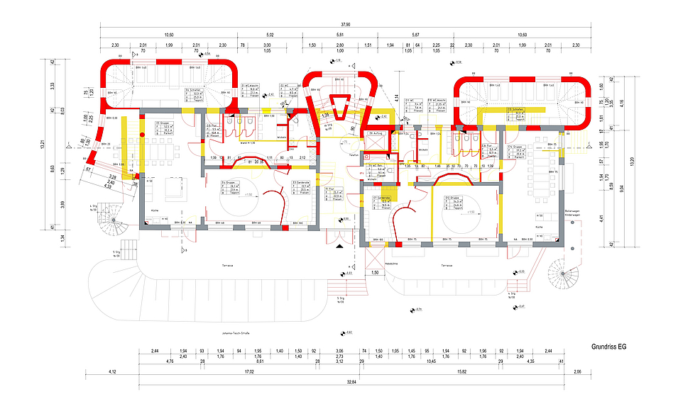
Umbau Waldorfkindergarten Berlin Köpenick
Der Massivbau aus den 60er Jahren soll umgebaut und erweitert werden. Dabei sind die Nutzungsanforderungen der Waldorfpädagogik zu beachten, und die energetische Situation muss deutlich verbessert werden.
In den neuen Anbauten und im Staffelgeschoss (DG) sollen Wandflächenheizungen eingesetzt werden. Die Heizungsanlage wird komplett erneuert und mit PV-Anlagen ergänzt. Gemeinsam mit dem federführenden Planer und B.A.U.-Kollegen, Dipl.-Ing. Architekt Hartmut Scherer aus Berlin, haben wir die Planunterlagen erstellt und das Energiekonzept ausgearbeitet.





